| Фирма VEKA AG переходит на системы SOFTLINE и EUROLINE с осевым размером 13 мм, адаптируя его к уже
существующей системе TOPLINE, имеющей монтажную ширину 70 мм. Все новые системы, которые
фирма VEKA AG планирует разрабатывать в ближайшем будущем, будут также иметь данный осевой размер, что даст
партнерам фирмы ряд преимуществ.
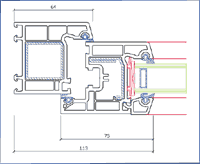
Данное изменение позволяет использовать для системы EUROLINE те же уплотнители, что и в системах VEKA, имеющих монтажную ширину 70 мм. При такой высокой степени совместимости систем отпадает необходимость иметь на складе большое количество различных уплотнителей. Это также касается и запасов различных компонентов фурнитуры, которые теперь могут использоваться для систем с монтажной шириной и 58, и 70 мм. Благодаря дальнейшему усовершенствованию размер паза штапика системы EUROLINE теперь такой же, как и систем, имеющих монтажную ширину 70 мм. Этим обусловлены преимущества относительно хранения на складе фурнитуры, например, замков, которые теперь могут быть использованы во всех системах фирмы VEKA. Вследствие изменения нахлеста створки значительно облегчен процесс крепления фурнитуры шурупами и оптимизирован процесс очистки. Штапик системы EUROLINE был также переработан. Теперь он поставляется с коэкструдированны муплотнителем из мягкого ПВХ. Одинаковая высота стоек дает возможность параллельно обрабатывать системы EUROLINE и TOPLINE. Оптимальное применение обеспечивается минимальной монтажной высотой, которая позволяет архитектору проектировать окна с “узкими” рамами на соответствующих объектах. Превосходные статические показатели, которые достигаются при работе с системой EUROLINE, соответствуют всем требованиям, предъявляемым к объектному строительству. В частности, речь идет об усиленной, благодаря оптимально рассчитанным размерам камер, створке, а также двойном армировании. После проведения ряда всесторонних тестов стабильно высокое качество продукции гарантируется. Таким образом, при работе с усовершенствованной системой EUROLINE появляется ряд преимуществ, прежде всего, технического характера, для переработчиков, которые стремятся обеспечить наибольшую рациональность производства.
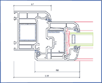
Наряду с усовершенствованием системы EUROLINE, была переработана и система TOPLINE. Результатом данной переработки является настоящая пятикамерная система с монтажной шириной 70 мм. Дополнительная камера обеспечивает улучшенное энергосбережение и имеет отличные статические показатели. Как в цветных, так и в белых профилях теперь будет использоваться один и тот же створочный профиль. Для обеспечения подходящего усиления профиля было применено имеющееся в распоряжении стальное армирование. Базовая TOPLINE AD — комплексная система: имеются четыре рамы азличной монтажной высоты и присоединительный профиль (Adapterprofil) для достижения необходимой наружной ширины при комбинировании поворотно- откидных створок для глухого остекления, а также восемь различных вариантов створок с Европазом в исполнении с совмещенной и со смещенной поверхностями. Наряду со стандартной створкой 80 мм существуют также варианты меньшего (70 мм) и большего (105 мм) размера для запасных дверей или негабаритных створок. Два из восьми створочных профиля предназначены для открывающихся наружу вариантов. Система с двумя АРТК-уплотнителями предлагает к тому же пять глухих импостов с наружной шириной 64, 75, 85, 100 и 118 мм. Для монтажа глухих импостов фирма VEKA разработала установочную технику со специальными соединителями импостов, при использовании которой нет необходимости вырезать рамный уплотнитель, поскольку он полностью проходит. Закругленность контуров системы TOPLINE AD достигается при помощи трех ложных импостов, а конструкция штульпа позволяет устанавливать видимую ширину поворотно- откидных створок от 112 до 166 мм. Для всех штульпов имеются заглушки в детальном цветном исполнении, чтобы можно было выбрать подходящий цвет как для внутренних, так и для наружных сторон. АРТК-уплотнители систем поставляются в черном и сером цвете, как и уплотнители, установленные и заваренные на заводе. Благодаря пяти камерам в створках и рамах, а также монтажной ширине 70 мм, уже сегодня соблюдаются требования грядущего Положения об энергосбережении и теплоизоляции. Система обладает современным дизайном благодаря изящности конструкции и штапикам. Обе системы могут быть поставлены как в белом, так и в одностороннем или двухстороннем цветном исполнении. |
Новые разработки фирмы VEKA: усовершенствование систем EUROLINE и TOPLINE
4 325
“Зенденхорст” — предлагать своим клиентам качественный сервис и при этом
постоянно совершенствовать свою продукцию — вот девиз фирмы VEKA AG, одного
из ведущих мировых производителей оконных и дверных систем из ПВХ.
Смотрите также:
Найдите все свои архитектурные решения через OKNA.ua: Нажмите здесь чтобы зарегистрироваться. Вы производитель и хотите наладить контакт с клиентами? Кликните сюда.
Рассказать друзьям
Присоединяйтесь, чтобы быть в курсе и получать еженедельную рассылку OKNA.ua




